平面设计图怎么设计

平面设计图怎么设计?今天小编和大家分享一下怎样设计平面设计图,这里主要介绍简单的设计方法。

东西/原料

  • 电脑
  • 操作系统:Windows7
  • 软件:CCAD8

方式/步调

  1. 1

    点击菜单栏上的“项目”——点击新建图样,选择一种幅面,设置题目栏、明细栏、比例等。

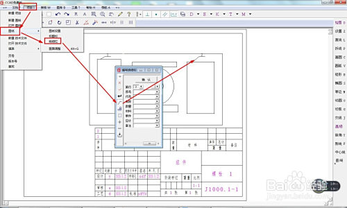
  2. 2

    点击菜单上的项目——选择图纸——选择题目栏——点击各个选项的下拉按钮选择内容,也可以按照现实本身输入各选项的内容——设置完当作后点击确定。

  3. 3

    接着点击选择右侧的画图东西如圆形、矩形、切圆等在编纂页面绘制本身想要的平面图

  4. 4

    选择东西后在页面上绘图,这时会有一个数值输入框——输入数值并按回车确定。

  5. 5

    点击项目——图纸——明细栏,然后填写明细栏——点击选明细栏对话窗左侧东西条按钮“厂”画序号指引线。

  6. 6

    设计完当作之后,点击菜单上的文档——点击存盘,保留在电脑磁盘上。

    END

小结

  1. 1

    平面设计图怎么设计:

    (1)新建图样;

    (2)设置图纸题目栏;

    (3)利用画图东西制图;

    (4)画图过程可输入具体数值并按回车确定;

    (5)填写明细栏;

    (6)存盘保留文档。

    END

注重事项

  • 但愿能帮忙到您
  • 发表于 2020-06-07 17:40
  • 阅读 ( 843 )
  • 分类:其他类型

你可能感兴趣的文章

相关问题

0 条评论

请先 登录 后评论
联系我们:uytrv@hotmail.com 问答工具